ATXCAD, AS-BUILTS, FLOOR PLANS, ELEVATIONS & VIRTUAL TOURS


ATXCAD aims to fulfill all your drafting needs. We specialize in as-built architectural drawings.  Available to talk through your project needs and supply you with a quick quote,  prompt start date and timely completion of drawings.


  • As-built floor plans, and elevations
  • State-of-the-art measuring equipment providing exceptional accuracy, speed and affordability
  • PDF and CAD files provided
  • Virtual tours
  • Space planning
  • Sqft calculations

Do not hesitate to call. Happy to help with whatever project you have.

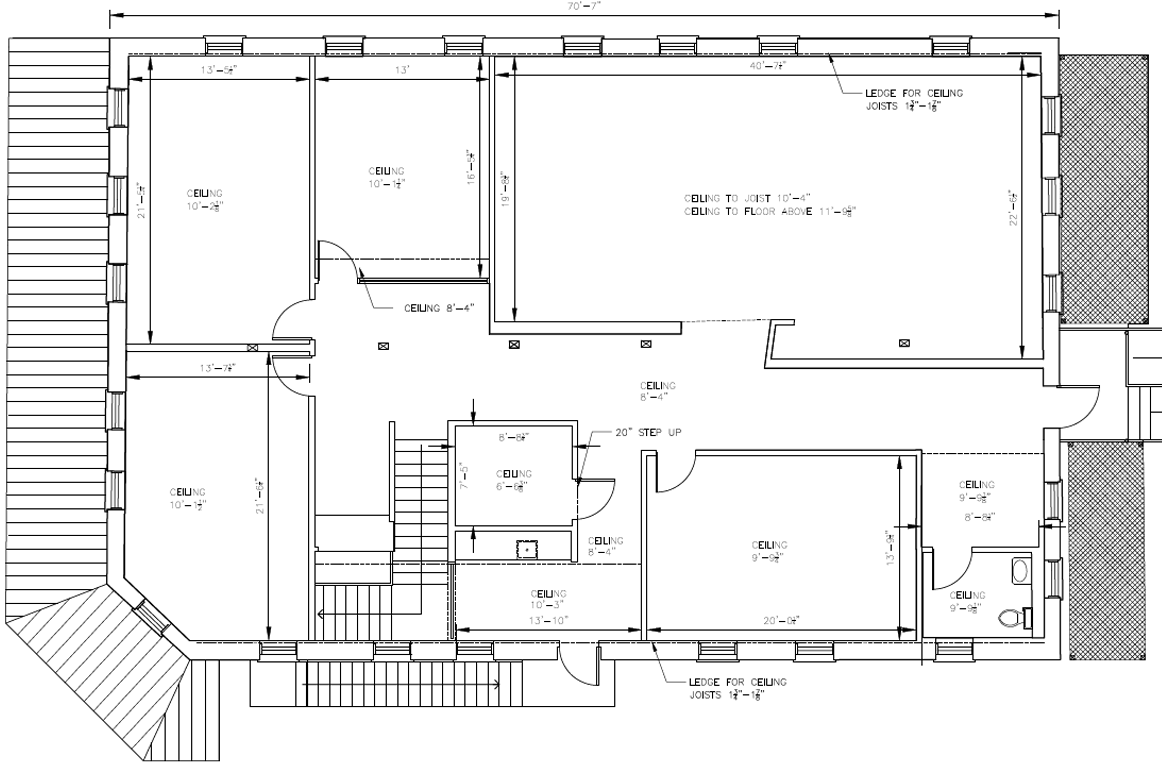
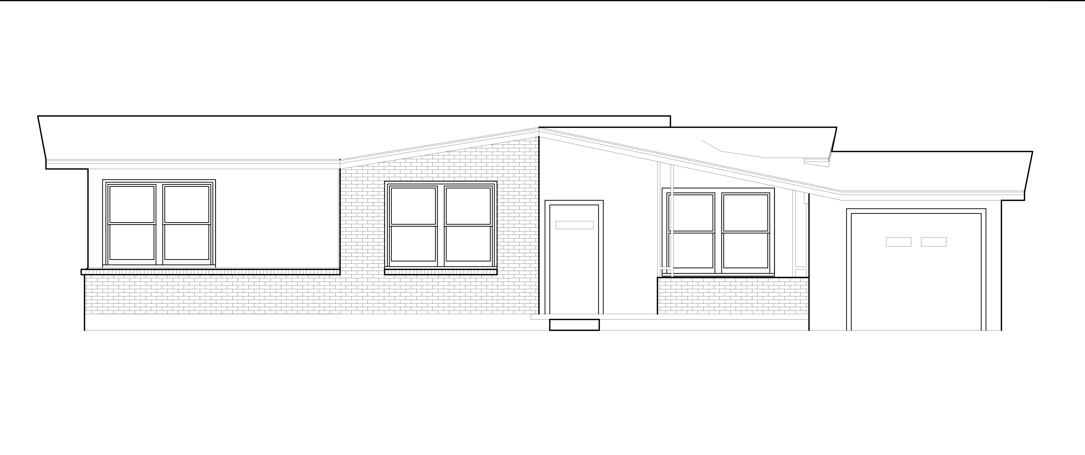
AS-BUILT FLOOR PLANS & ELEVATIONS

AS-BUILT FLOOR PLANS & ELEVATIONS

  • We produce architectural and engineering floor plans and elevations. Reflected ceiling plans and interior elevations are available on request
  • Detailed, accurate and timely CAD drawings are produced, to scale and are provided in PDF and .DWG format.
  • A virtual tour of the property is also provided completing the documentation in thorough detail.
  • Proposed design work is also available for simpler projects within the existing building envelope.
BESPOKE CAD PROJECTS

BESPOKE CAD PROJECTS

Bespoke CAD projects are considered on case-by-case basis and largely depend on availabilty.  If a project is outside my wheel-house or feel it is better served by another; I will point you in the right direction.

VIRTUAL PROPERTY TOURS

VIRTUAL PROPERTY TOURS

A Virtual Tour is versatile product, perfect for real-estate marketing,  architectural documentation and protesting property tax sqft overestimation to name just a few uses.

  • The tour provides, PDF floor plans, sqft calculations, and room measurements; all available online for your convenience.
  • This can be a stand-alone product or paired with CAD As-Built drawings.
  • An example can be found here: Virtual Tour
FLOOR PLANS/ SQFT CALCS

FLOOR PLANS/ SQFT CALCS

We are running a special for home-owners who wish to varify their sqft to appeal their property tax.

This is our most basic product but remains exceptionally accurate. Pricing depends on property size.

Please reach out if you have any questions.